跳到主要內容區
您的瀏覽器不支援JavaScript功能,若網頁功能無法正常使用時,請開啟瀏覽器JavaScript狀態
新竹縣立竹東國民中學
漢堡鈕選單
回首頁
行政差勤系統
校務行政全誼系統
新單一認證平臺(EIP)
公文系統
圖書館
新竹縣教育雲端帳號認證服務
教職員專區
IDTC校園行動廣播系統
全國教師在職進修資訊網(研習報名)
學習扶助科技化評量(代碼:044501)
教育體系單一簽入服務
米立雲遊學樂園(EIP帳號密碼登入)
108課綱資訊網
教育部校園雲端電子郵件
eCPA人事服務網 (MyData由此進)
新竹縣政府教育局
新竹縣教網中心
教育部GSuite與教育雲端帳號申請
TANet 教育部測速
學生專區
學生帳號開通(gapp)
Tasal 調查平台
學習扶助評量系統
免試入學報名暨分發系統平臺
教育部因材網
米立雲遊學樂園
HiTeach 入口網
興趣測驗
性向測驗
刪除iPad所有照片
清除Safari瀏覽紀錄
運動會大會操示範影片
網站管理
Gemini AI
School+家長註冊說明檔
Android版本下載
IOS版本下載
School+家長註冊說明檔
家長簡訊註冊教學影片
學生請假操作影片
線上教學
Google Meet™的鏡像模式
登入classroom【gapp帳號】
登入classroom【go帳號】
登入classroom【cdjh帳號】
登入classroom【其它帳號】
各班meet 連結
vCast / AirSync
計分板
兩隊 PK 計分版
多組對抗計分板
eduroam設定
手機設定
筆電設定
K MOVIE 雲端公播電影網
168交通安全
首頁
公佈欄
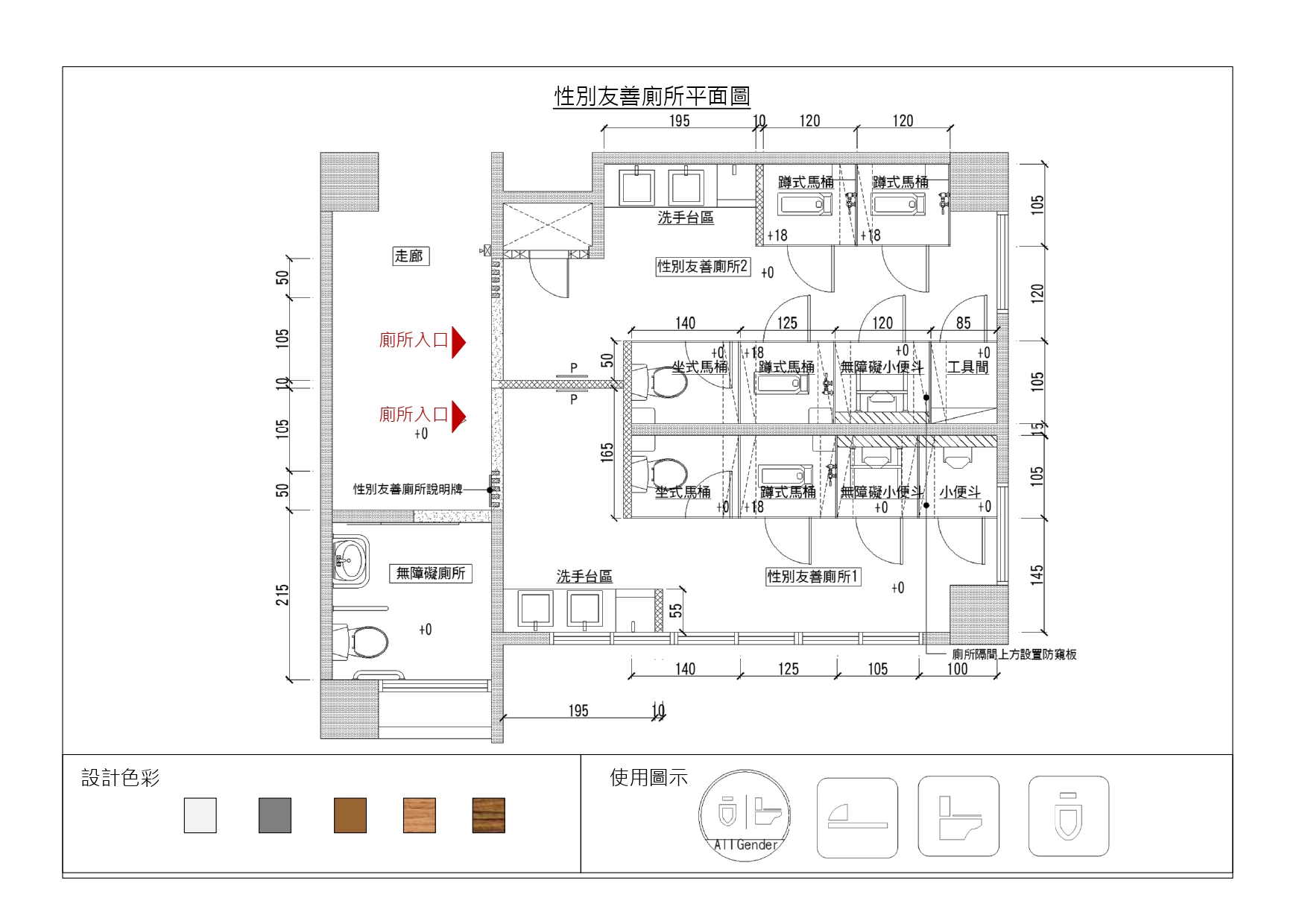
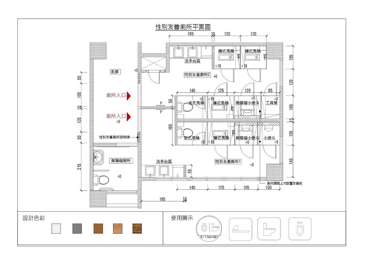
性別友善廁所平面示意圖
性別友善廁所平面示意圖
性別友善廁所平面示意圖
性別友善廁所平面示意圖(20260107).pdf
批次下載附件
瀏覽數:
登入成功
Close (Esc)
Share
Toggle fullscreen
Zoom in/out
Previous (arrow left)
Next (arrow right)